logo

CADWorx Plant Professional

全新理念的三维管道辅助设计软件,智能配管,高效建模

产品演示

观看产品演示视频,了解CADWorx Plant的强大功能

产品简介

海克斯康公司全新理念的三维管道辅助设计软件
CADWorx Plant Professional是海克斯康公司一款全新理念的三维管道辅助设计软件,依靠软件包含的多种国内外的等级,用户可以进行多种类型的管道设计和布置,如:对焊管线、承插管线、螺纹管线、法兰管线、FRP/PVC线、卫生级食品和医药类管线等。CADWorx提供快捷智能的配管功能,其管道建模包含三种方式:
  1. 像以往绘制二维图纸一样,按照搭积木的方式,绘制三维模型。
  2. 首先绘制整条管道走向的中心线,然后使用软件的自动布管命令,完成管线的自动敷设(软件会自动添加弯头元件)。
  3. 采用新的三维建模理念,直接绘制三维管道模型,在需要的位置添加相应的管道元件,如:阀门、三通、大小头、仪表等。

功能与优势

全面的功能特性,提升设计效率与质量

易学,易用,易维护

基于AutoCAD和KunhengCAD平台开发,实现完全兼容。普通用户无需数据库知识和三维设计经验,经短期培训即可掌握。标准Windows界面,工程师可快速熟悉。
完整的培训体系及资料
几天培训即可独立操作
维护工作量极小

完全兼容CAD命令

基于AutoCAD和KunhengCAD平台的三维工厂设计软件,与CAD软件研发进度保持一致,可使用所有CAD命令。
对象捕捉、极轴追踪等功能
复制、粘贴、镜像、旋转命令
大大节约建模时间

工程建模效率的提高

高效、详细的结构建模功能,简单便捷创建结构模型,支持碰撞检测
管道布置如画直线般随心所欲,支持所有CAD操作
快速创建参数化设备,支持项目重复利用
内置设计规则,避免错误并节省配管时间
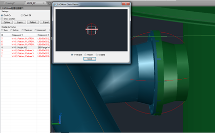
实时碰撞检查,设计阶段完全避免冲突
强大组件功能,定制常用设备组合
工程建模效率

双向分析接口

与CAESARII、PVElite等分析软件实现双向数据接口,节约建模时间,提高准确度。
CAESARII应力分析集成
PVElite压力容器分析
自动生成单线图
分析软件接口

图纸国际化

使用Isogen®单线图生成器,与PDS、PDMS、Smart3D保持一致,符合国际标准。
国际通用单线图格式
I-Configure直观编辑界面
无需手动修改
图纸国际化

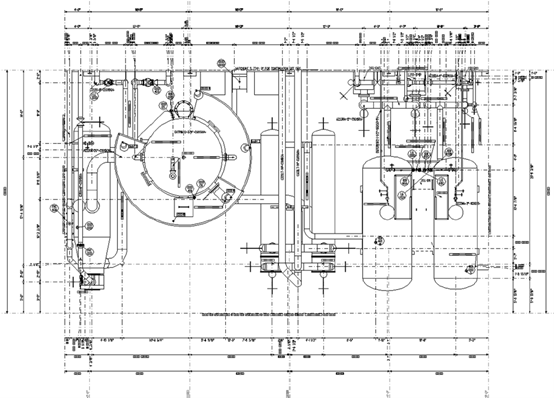
二维工程图

符合国内外标准,自动生成标注,支持化工、石油、石化、电力等行业标准。
工程图标准

免费模型漫游

CADWorx Design Review免费漫游模块,支持设计校对和审核,确保项目安全性。
模型漫游

大型项目互通

与Smart3D集成,支持PDMS模型转换,中小工程公司可参与大型项目。
设计互通

BIM方案集成

与建筑结构、电气风暖设计软件兼容,支持BIM项目建模和图纸生成。
BIM集成

ERP/PDM集成

支持与ERP、PDM系统集成,实现物料编码、层级码、物料表等数据的有效管理。
物料编码管理
物料变更跟踪

成功客户

全球众多知名企业的信赖选择

石油&石化&化工

中国石油集团工程设计有限责任公司北京分公司
西安长庆科技工程有限责任公司
江苏扬农化工股份有限公司

机械制造

合肥通用机械设计研究院有限公司
神钢无锡压缩机股份有限公司
冰轮环境技术股份有限公司

市政&环保

杭州水处理技术研究开发中心有限公司
上海电气电站水务工程公司
青岛华世洁环保科技有限公司

空分制氧

盈德气体工程(浙江)有限公司
广钢气体工程(杭州)有限公司
苏州制氧机股份有限公司

冶金工业

中铝山东工程技术有限公司
中冶华天工程技术有限公司
河南华慧有色工程设计有限公司

粉体工程

江苏道金智能制造科技股份有限公司
天星先进材料科技(苏州)有限公司
泽普林固体物料技术(上海)有限公司

制药医疗

上海奥星制药技术装备有限公司
中核第四研究设计工程有限公司
江苏省医药设计院有限公司

纺织工业

山东省纺织建筑设计院有限公司
郑州中远氨纶工程技术有限公司
扬州惠通科技股份有限公司

其他行业

中国电建集团山东电力建设第一工程公司
国核电站运行服务技术有限公司
威海中远海运重工科技有限公司

高等院校

南京工业大学
江南大学
青岛科技大学

准备开始使用 CADWorx Plant?

联系我们的专业团队,获取详细产品信息和技术支持